La certification des surfaces ci-après indique 262,11 M² pour la surface habitable et 78,25 M² pour les locaux annexes.

A noter la possibilité éventuelle d’aménagement des combles (30 à 40 M² )

Il est également annexé les différents plans, savoir :

          Le plan général de la propriété

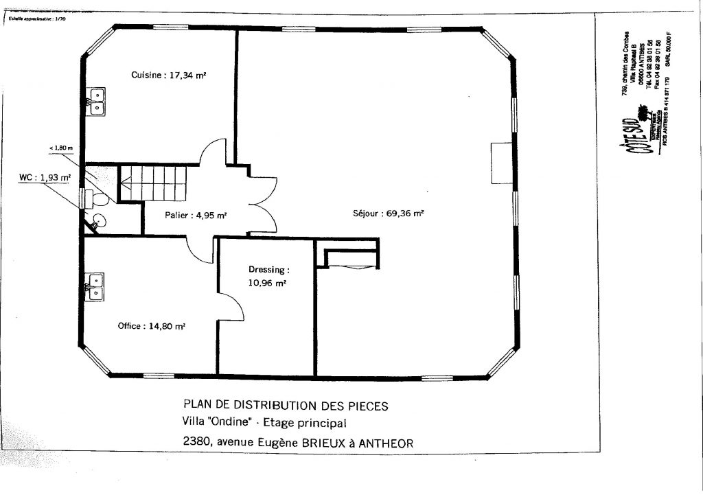
          Le plan de distribution des pièces de l’étage principal donnant sur la terrasse mer

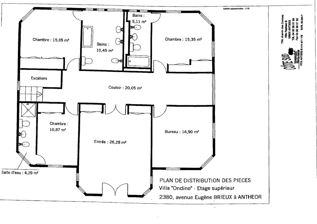
          Le plan de distribution des pièces de l’étage supérieur niveau rue

Il est également annexé les différents plans, savoir :

          Le plan général de la propriété

          Le plan de distribution des pièces de l’étage principal donnant sur la terrasse mer

          Le plan de distribution des pièces de l’étage supérieur niveau rue

Translate »
Retour en haut